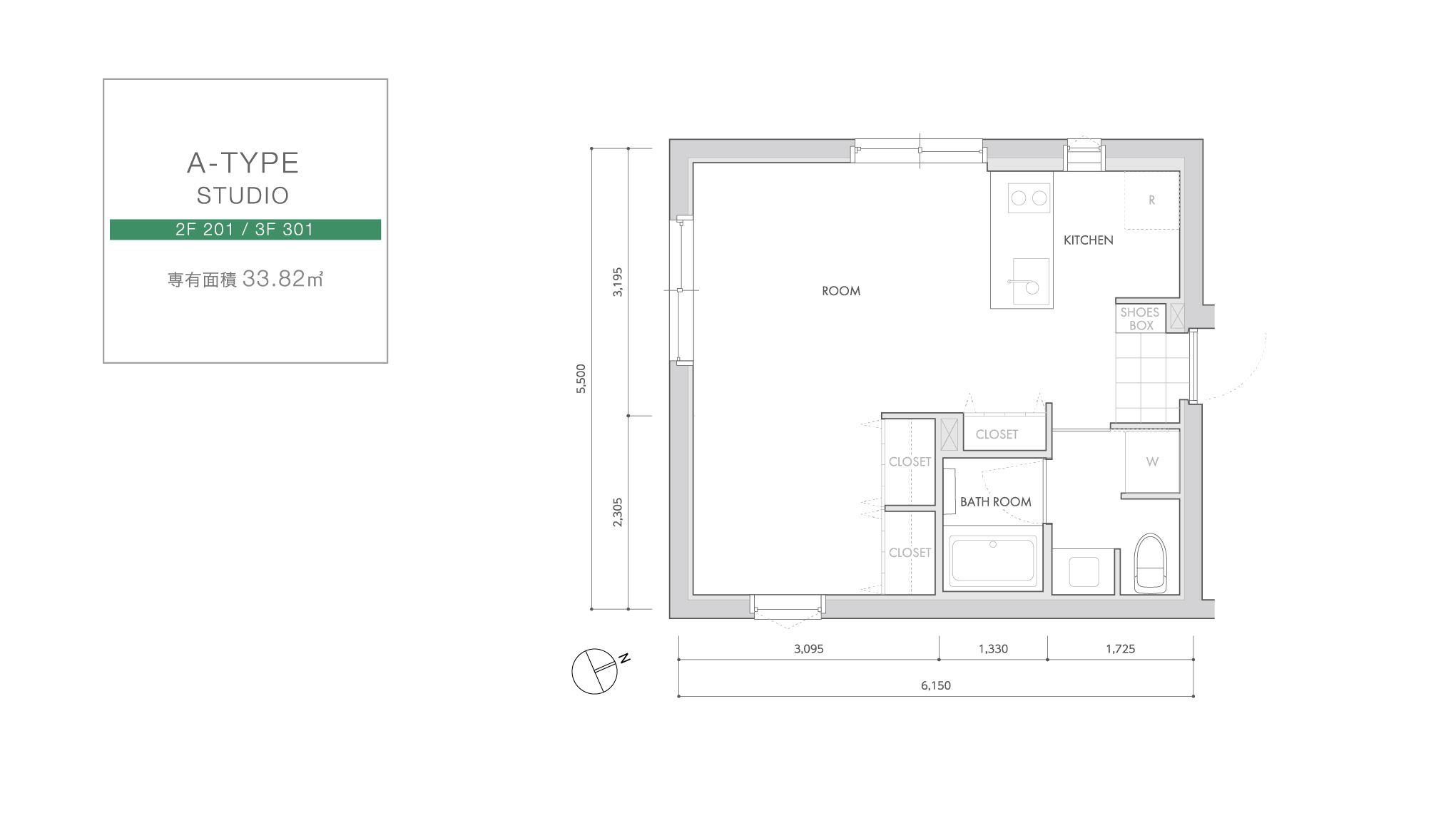
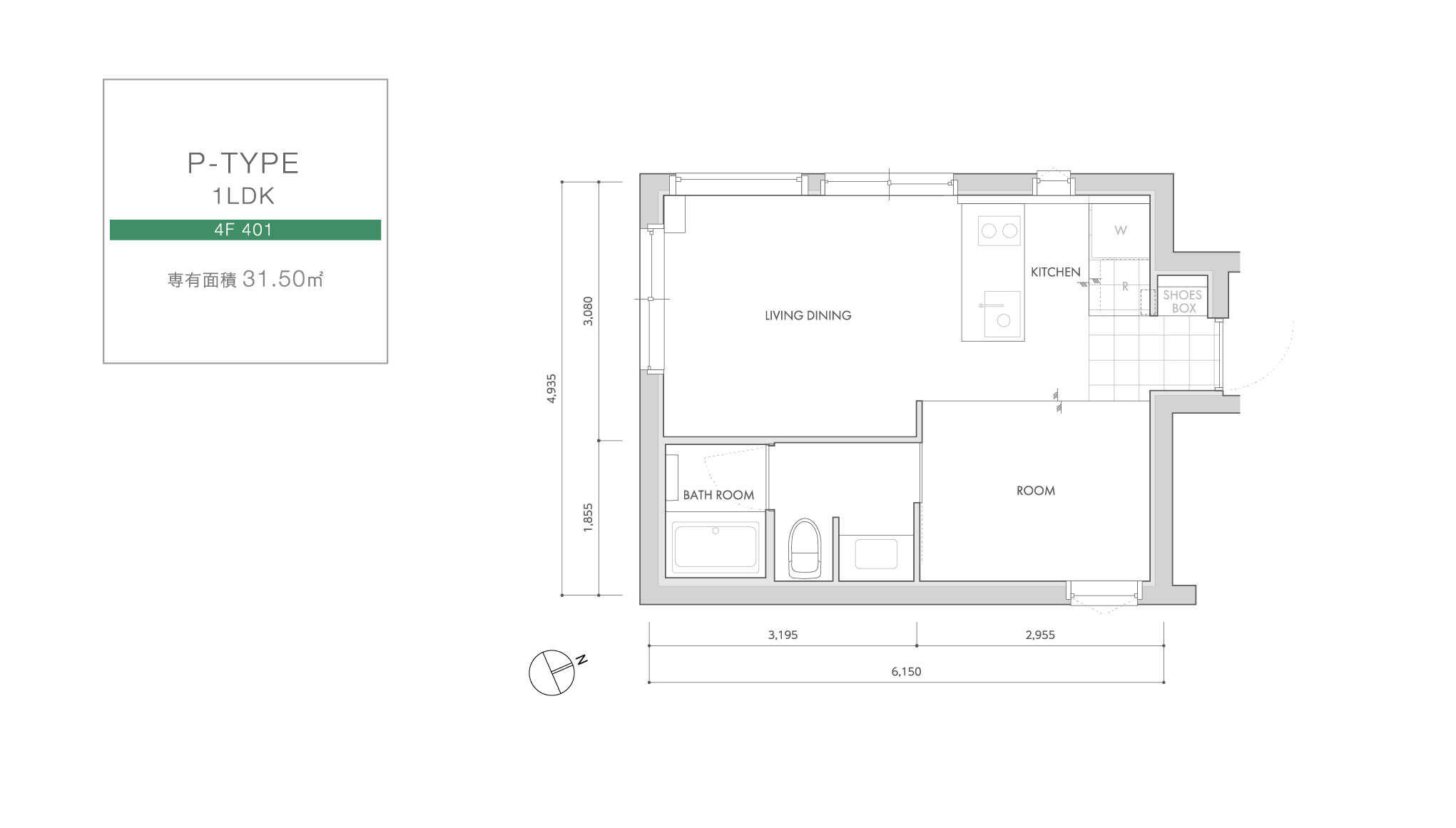
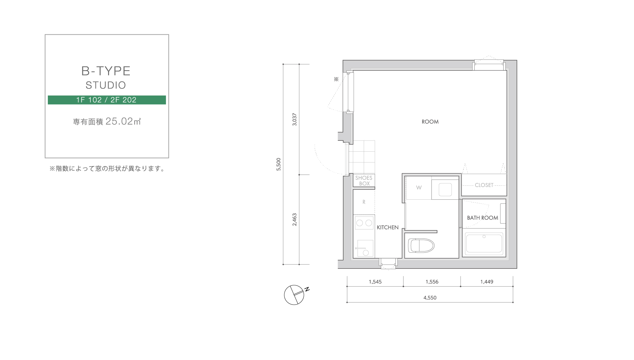
Plan STUDIO / STUDIO+LOFT / 1DK / 1LDK / 1LDK+LOFT ELEVATION DESIGN 南側立面図 西側立面図 北側立面図 東側立面図 ※図面と現況が異なる場合は、現況を優先させていただきます。 PLAN 1F - 4F A-TYPE 1LDK 2F 201 / 3F 301 専有面積 33.82 ㎡ B1・B2-TYPE 1DK・STUDIO 1F 102(B1) / 2F 202(B2) 専有面積 25.02 ㎡ C-TYPE STUDIO 1F 101 専有面積 25.04 ㎡ D-TYPE STUDIO+LOFT 3F 302 専有面積 25.02 ㎡ LOFT面積 9.64 ㎡ P-TYPE 1LDK+LOFT 4F 401 専有面積 31.50 ㎡